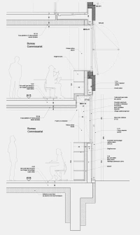
Le projet de commissariat constitue le socle d’un immeuble mixte (logements, commissariat, hôtel) à l’entrée du quartier Beaujon à Paris 8ème. L’immeuble présente une façade en pierre massive de Saint Maximin. L’aménagement intérieur met en valeur les matériaux bruts et nobles : affirmation de la structure béton laissée nue, cloisonnements en panneau bois, inox des meubles, sol en terrazzo coulé.
La lumière naturelle inonde les parties profondes du plan au travers des cloisonnements vitrés des bureaux.
 
         
         
         
         
         
         
         
         
         
         
         
         
         
         
        