Ce projet est composé de deux immeubles revêtus de panneaux de terre cuite émaillée vert de gris, au sein du lot 4.2 de la ZAC de la porte de Valenciennes.
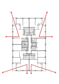
Autour d’un noyau compact accueillant l’ensemble des circulations et des pièces humides nécessaires, sont disposés 4 logements d’angle par palier, développant une séquence « en enfilade » salon/cuisine/loggia mettant en scène leur situation d’angle et permettant, depuis le salon, de profiter de 12 m de linéaire de façade avec de grands vitrages horizontaux en bandeaux sur allège.
 
         
         
         
         
         
         
         
         
         
         
         
         
         
         
         
         
         
         
         
         
         
         
         
         
         
         
         
         
         
         
         
         
         
        